ให้เช่าโกดัง คลังสินค้า ถนนเทพารักษ์ กม. 11 บางพลี สมุทรปราการ (SPSJK266)
ที่ตั้ง : เทพารักษ์
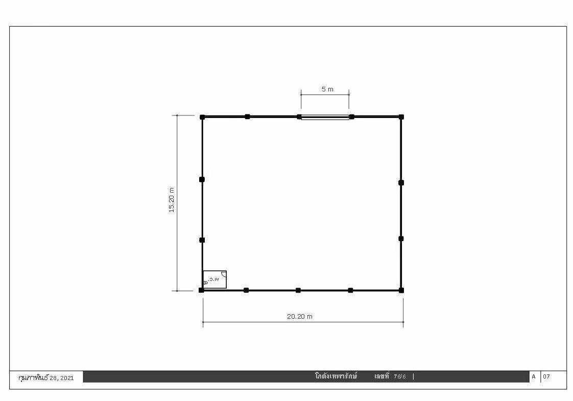
– ขนาดโกดัง 300 ตร.ม.
– ไฟฟ้า 3 เฟส รองรับการใช้งานเต็มประสิทธิภาพ
– พื้นโกดังรับน้ำหนักได้ 1 ตันต่อตารางเมตร
– เหมาะสำหรับใช้เป็น คลังสินค้า ศูนย์กระจายสินค้า หรือ โรงงานขนาดเล็ก
จุดเด่นทำเล :
– ติดถนนใหญ่เทพารักษ์
– ใกล้ทางด่วนกาญจนาภิเษก
– ใกล้ถนนคลองขุด
– ใกล้นิคมอุตสาหกรรมบางปู
เสนอราคาเช่า : 40,000 บาท / เดือน
– มัดจำเพียง 2 เดือน
– ล่วงหน้า 1 เดือน
– สัญญาเช่าขั้นต่ำ 1 ปี
Warehouse for rent, Theparak Road, Km. 11, Bang Phli, Samut Prakan(SPSJK266)
Location: Theparak
– Warehouse size 300 sq.m.
– 3-phase electricity, supports full efficiency
– Warehouse floor can support 1 ton per square meter
– Suitable for use as a warehouse, distribution center or small factory
Location highlights:
– On Theparak main road
– Near Kanchanaphisek Expressway
– Near Khlong Khut Road
– Near Bangpoo Industrial Estate
Rental price: 40,000 baht / month
– Deposit only 2 months
– 1 month in advance
– Minimum lease contract 1 year
More information or viewing appointment.
Contact : Agent Pupay (Thai/English)
Mobile : 0955725853 (Line/Whatapp)
Office : 02-118-0886
Line ID : pupay_smartmove or https://line.me/ti/p/ysLhNwZO6Z
E mail : pornpun@smartmoveproperty.co.th
Page : https://m.facebook.com/smartmovepropertythailand/
Website : https://www.smartmoveproperty.co.th/
Line OA: @property.thailand ( พิม @ นำหน้า )
Or click : https://lin.ee/Q0R6s5h
Compare listings
Compare